Ruusankatu's plan is an update of 1930's flat, suitable for an active life of a family of four members. Situated in Helsinki, Töölö, the design is highly flexible for changes. Its plan of reorganising the space in three section's (active, laisure and total rest) the new residence becomes also more luminous and open for guests.
Jaakko Heikinheimo, Ark SAFA
Client: Private
Year: 2015
Area: Total 110m2
Photos: Joel Hautecoeur
RUUSANKATU RESIDENCE
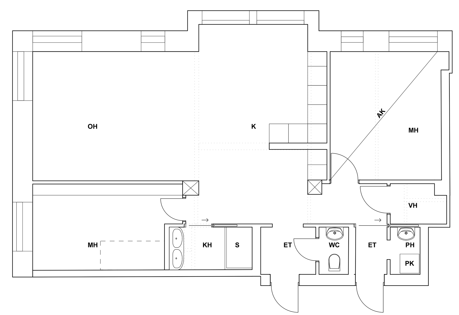
Ruusankatu residence is a 110m2 appartement situated in the Töölöö district of Helsinki. Th renovation was done for a family of four. Two small kids and parents. Almost all the non exyernal walls are being taken down and replaced with new ones.
Almost all the wall are being taken down and replaced with new ones. The new space is divided to three layers. From the entry towards the windows:
1. Primary functions in one raw (toilets, batchroom, service room, waching machines an so on).
1. Primary functions in one raw (toilets, batchroom, service room, waching machines an so on).
2. 2nd raw: dynamic raw. Corridor, with access to all the spaces.
3. Living. Bedrooms, kitchen and livingroom.
3. Living. Bedrooms, kitchen and livingroom.





