Client: Private
Year: 2020-2022
Area: Total 220m2
Photos: Client
Villa S was designed as a winter sport resort for a family and their friends. Situated far in the Finnish Lapland, the timber structured hut is highly sustainable for its selection of vernacular materials, low maintenance and overall intransigent building quality.

View from the construction site. Photo by client. 2022

Ground floor 1:100

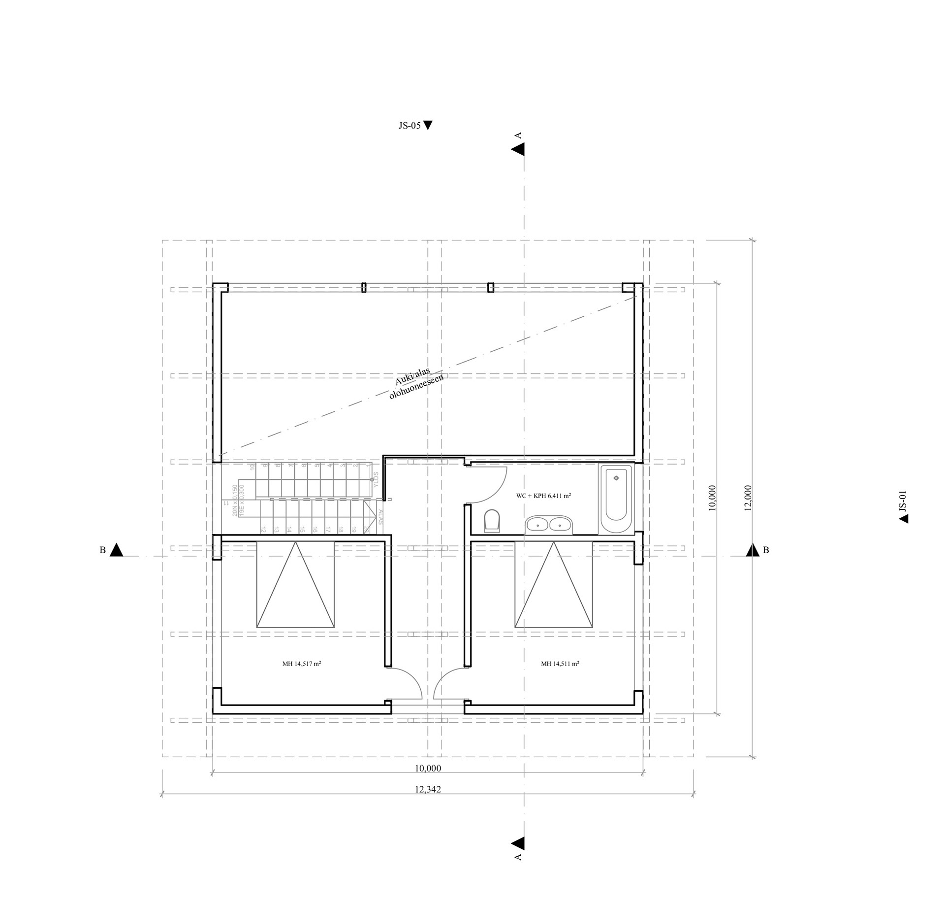
1st. Floor 1:100

2nd. Floor 1:100

View of the scale model

View from the living room area. Photo by client. 2022